THIẾT KẾ NHÀ PHỐ – NP467

THÔNG TIN DỰ ÁN:

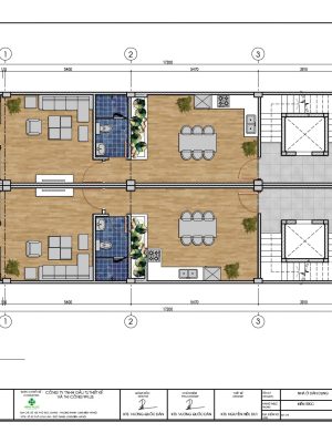
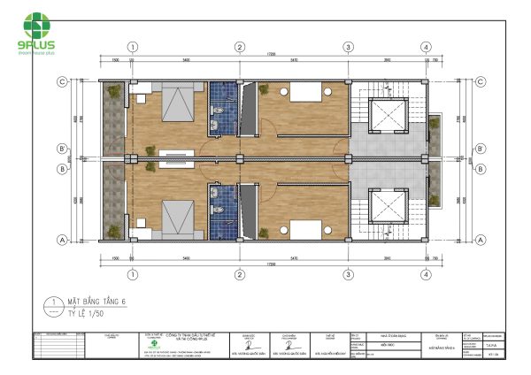
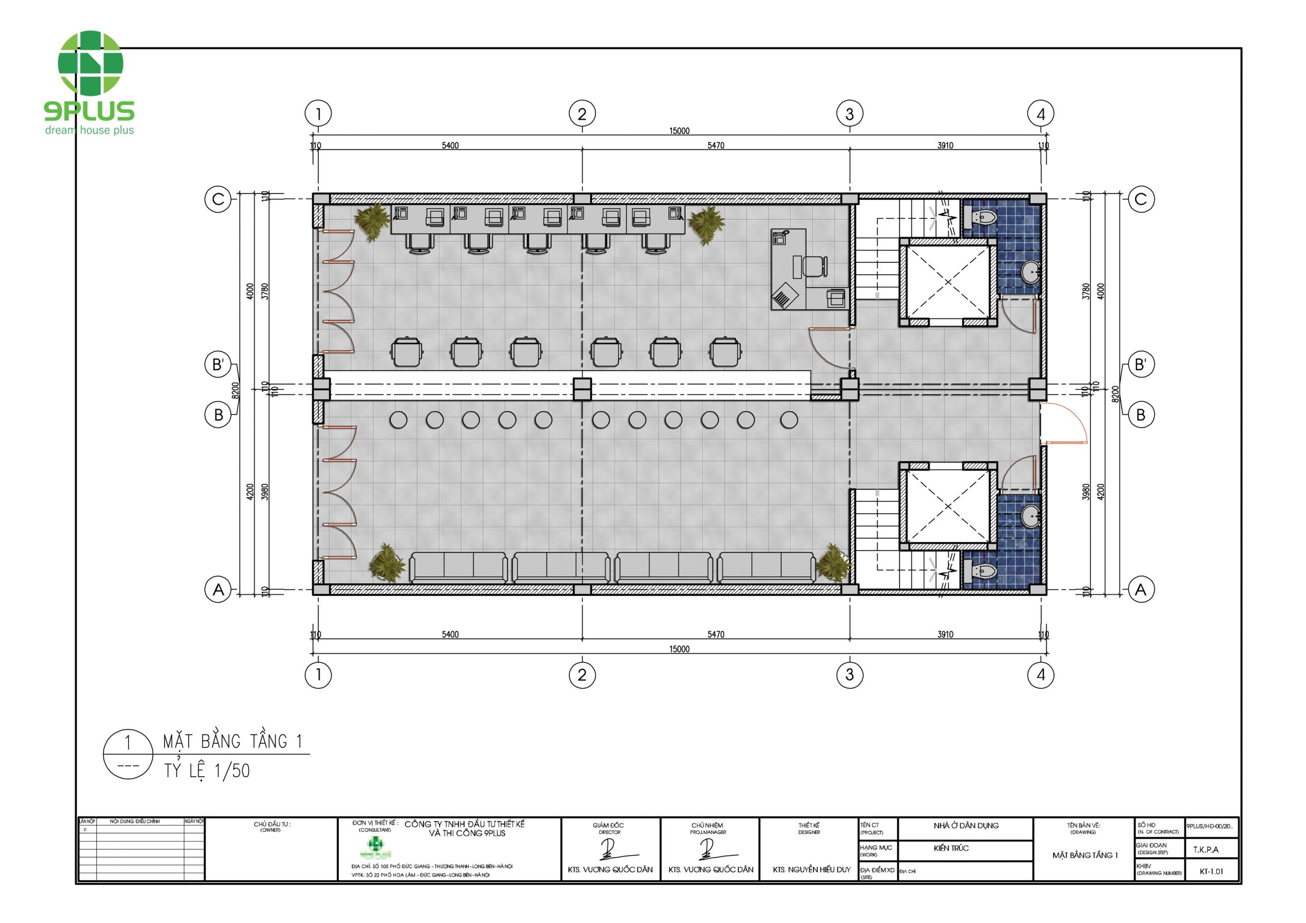
Dự án: Gia đình anh Thoa, Đông Anh, Hà Nội

Diện tích đất: 123m2

Diện tích xây dựng: 123m2

Phong cách: Hiện đại

Hạng mục thực hiện: Thiết kế kiến trúc

LIÊN HỆ TƯ VẤN
Nhà phố hay còn gọi là nhà ống, nhà liên kề là loại nhà sở hữu mặt tiền hẹp và chiều dài khiêm tốn, thường được xây sát nhau với chỉ 1 hoặc 2 mặt tiếp giáp với đường giao thông. Do đặc điểm này mà việc thiết kế cũng như thi công xây dựng nhà phố rất đặc thù. Trong loạt bài viết này, thiết kế 9PLUS sẽ giới thiệu đến bạn đọc những mẫu thiết kế nhà phố từ hiện đại đến cổ điển, tân cổ điển đẳng cấp mà bạn không nên bỏ qua.
0932279268