THIẾT KẾ & THI CÔNG NHÀ PHỐ – NP461
THIẾT KẾ & THI CÔNG NHÀ PHỐ – NP461
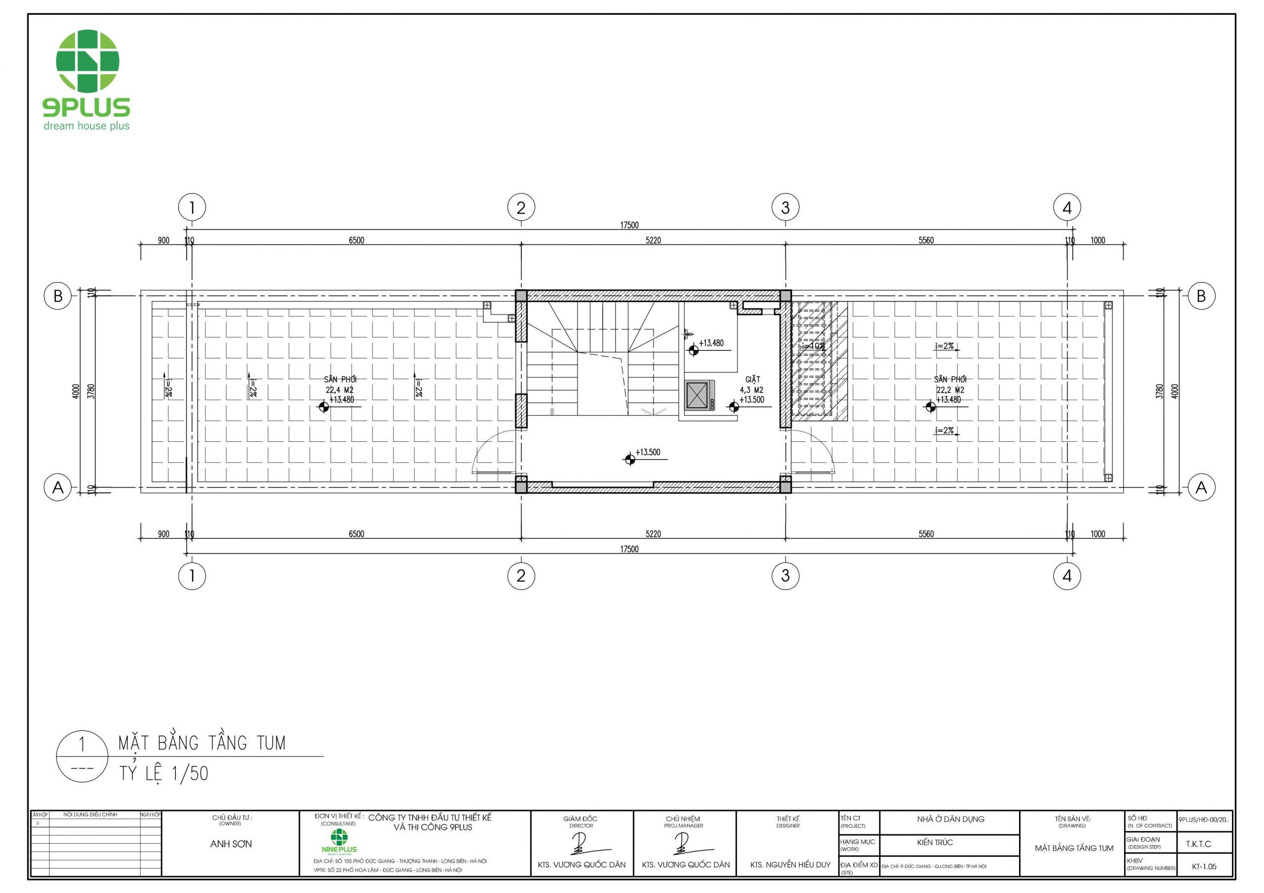
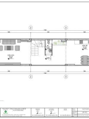
THÔNG TIN DỰ ÁN
- Chủ đầu tư: Anh Sơn
- Địa chỉ : Đức Giang – Long Biên– Hà Nội
- Hạng Mục: Thiết kế – Thi Công Trọn Gói
- Diện tích 1 sàn: 84 m2
- Tổng diện tích: 446 m2
- Đơn giá: 6.050.000VNĐ/m2
- Phong cách: Hiện Đại





























