THIẾT KẾ & THI CÔNG NHÀ PHỐ – NP450
THIẾT KẾ & THI CÔNG NHÀ PHỐ – NP450
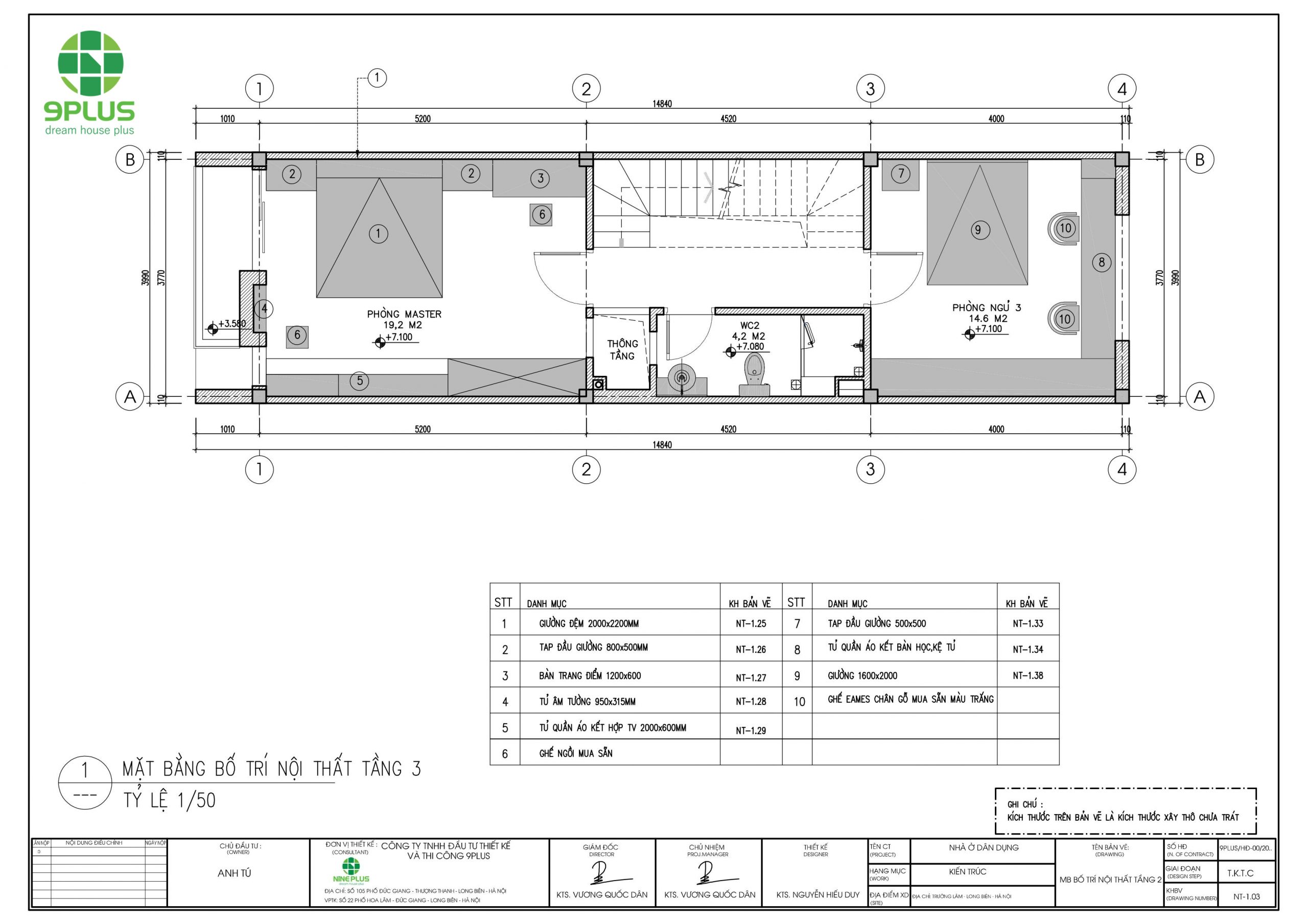
THÔNG TIN DỰ ÁN
- Chủ đầu tư: Anh Tú
- Địa chỉ : Trường Lâm – Long Biên– Hà Nội
- Hạng Mục: Thiết kế – Thi Công Trọn Gói
- Diện tích 1 sàn: 65 m2
- Tổng diện tích: 238 m2
- Đơn giá: 6.450.000VNĐ/m2
- Phong cách: Hiện Đại

















































































