THIẾT KẾ NHÀ PHỐ – NP483

THÔNG TIN DỰ ÁN
  • Chủ đầu tư: Chị Phượng
  • Địa chỉ : Ngọc Thụy, Hà Nội
  • Hạng Mục: Tư vấn Thiết kế
LIÊN HỆ TƯ VẤN
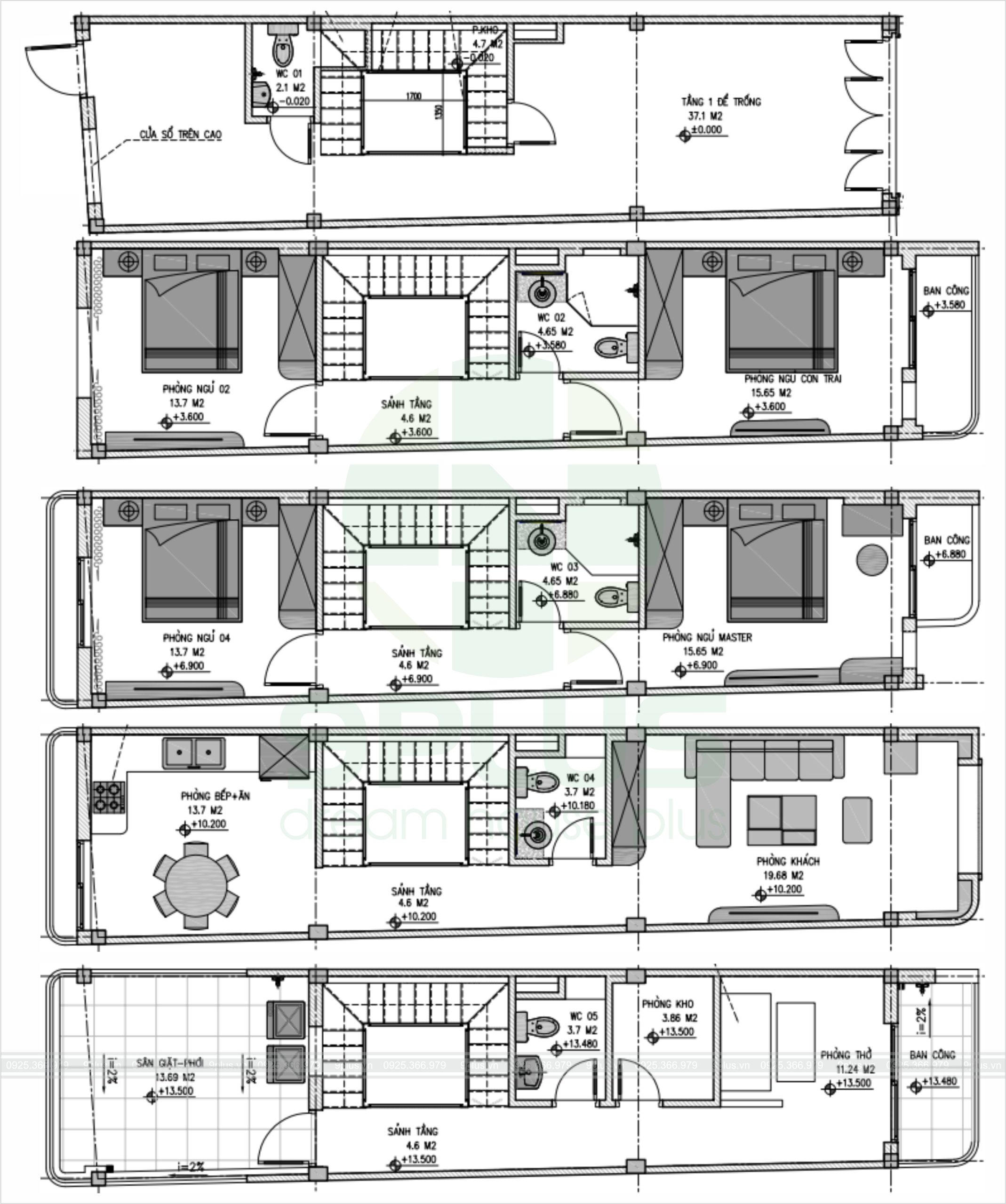
Nhà phố hay còn gọi là nhà ống, nhà liên kề là loại nhà sở hữu mặt tiền hẹp và chiều dài khiêm tốn, thường được xây sát nhau với chỉ 1 hoặc 2 mặt tiếp giáp với đường giao thông. Do đặc điểm này mà việc thiết kế cũng như thi công xây dựng nhà phố rất đặc thù. Trong loạt bài viết này, thiết kế 9PLUS sẽ giới thiệu đến bạn đọc những mẫu thiết kế nhà phố từ hiện đại đến cổ điển, tân cổ điển đẳng cấp mà bạn không nên bỏ qua.
0932279268