NinePlus xin gửi tới quý khách hàng mẫu biệt thự mái Nhật. Với những đường nét ngoại thất độc đáo, tinh tế cùng với sự hợp lý trong công năng sử dụng, không gian cảnh quan rộng rãi thoáng đãng, hứa hẹn sẽ là nơi lui về an nhiên, đầm ấm và hạnh phúc dành cho gia đình gia chủ.
BIỆT THỰ MÁI NHẬT – BT302
BIỆT THỰ MÁI NHẬT – BT302
THÔNG TIN DỰ ÁN
◾ Chủ đầu tư: Anh Giáp
◾ Địa chỉ : Hạ Hòa – Phú Thọ
◾ Hạng Mục: Tư Vấn – Thiết Kế.
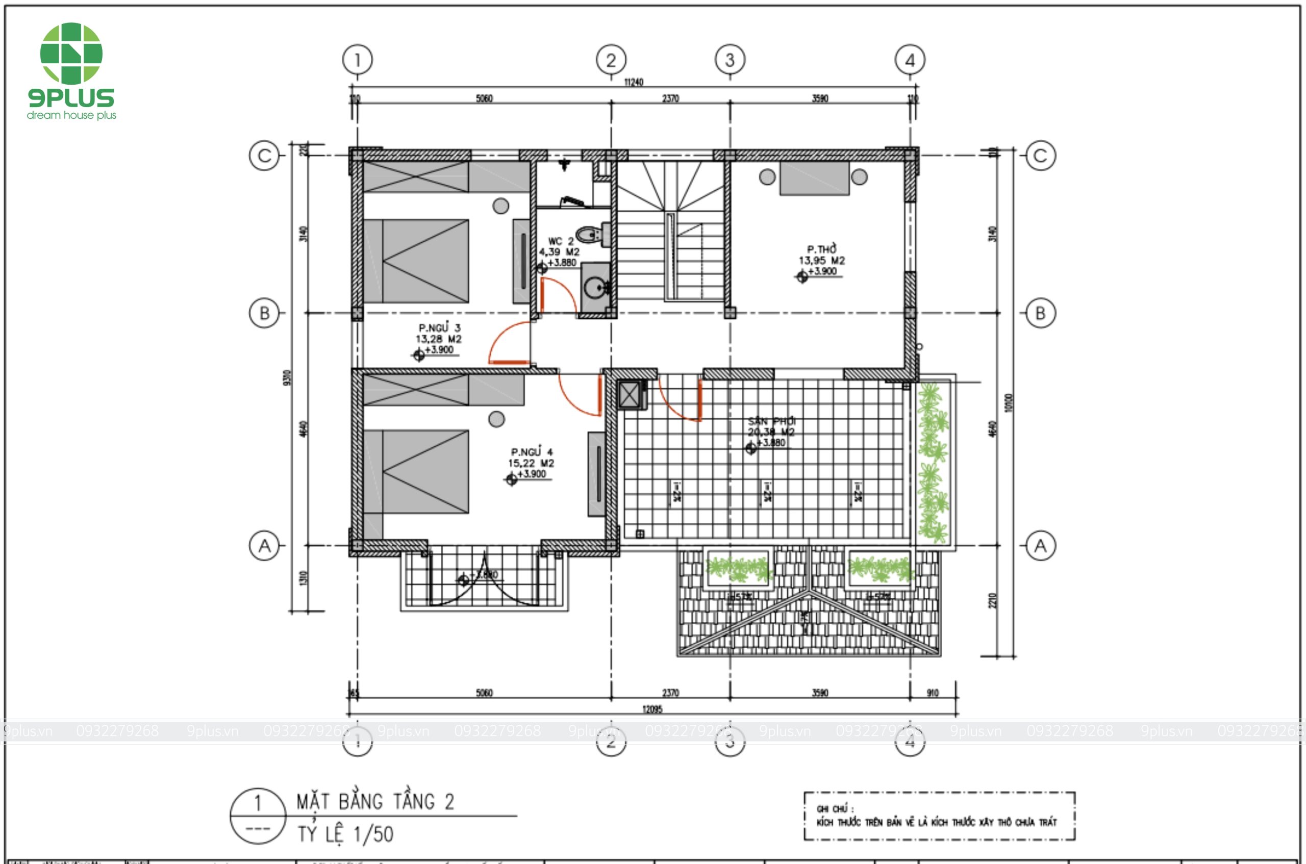
◾ Diện tích 1 sàn: 111 m2
◾ Phong cách: Biệt Thự Vườn



















